在室內設計與裝修工程中,「天花設計」常是被忽略但最容易出問題的環節。
好的天花圖說不只包含燈具配置,還包括間接照明燈槽深度、吊隱式冷氣與冷氣維修孔、天花板高度﹐樑位避讓、設備線路整合等細節。
本篇文章已Bellus的實際案場天花配置圖為例,深入解析每一個關鍵,讓你在裝修前就能清楚理解天花設計該注意什麼、如何避免常見問題。
什麼是天花設計?為什麼在室內設計中如此重要?
.png)
天花設計是室內設計中負責整合:
1.間接照明燈帶
2.主照明燈具
3.吊隱式冷氣風管
4.冷氣維修孔
5.消防、偵煙設備
6.天花避樑
隱藏管線與線路整合 沒有良好規劃的天花設計,現場容易出現:
1.燈槽深度不夠、光形不美
2.風管與樑位互相干擾
3.空調設備與維修空無法相對應
天花配置圖 (天花圖說) 是讓空間功能、美感與維修都到位的重要依據
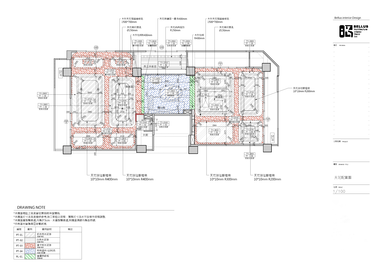
1.間接照明設計:燈槽尺寸與深度一定要在圖面上標示清楚
「間接照明」已成為現代室內設計中最受歡迎的照明方式,但間接照明最怕:
1.亮度不足
2.光斑不均
3.看得到光源
4.燈槽太 淺、太貼牆
為了避免這些問題,天花設計必須提前設定:
1.燈槽寬度(例如10mm、20mm)
2.燈槽深度(確保光線柔和)
3.R角尺寸(如R200、R400mm)
4.光帶距離牆面距離
5.散熱空間
本案的天花圖清楚標示光槽:10×10mm、R200-R400mm,確保間接照明效果穩定、柔和且好維修。
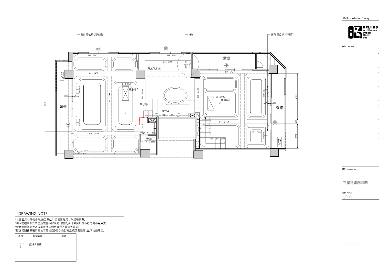
2.吊隱式冷氣設計:空調設備與天花無法相互呼應
.png)
吊隱式冷氣 (隱藏形空調設備 ) 是現代住宅常見選擇,但 「空調維修孔讓維修者無法順利維修」是實務上最常見的問題。
1.維修孔務必與空調室內機相對應
2.維修孔尺寸坊間至是預留需45-80 cm以上
3.冷氣風口、回風口需與樑位錯開
4.空調設備需有維修空間
這也是為什麼Bellus的天花設計會在圖上明確標示:冷氣位置、維修孔位置、設備尺寸與方向。
3.天花板避樑與跳高差:決定天花板高度的關鍵因素
(1).png)
天花板高度是否壓迫、線條是否乾淨,都取決於「天花避樑」是否規劃完善。
天花圖會標示:
1.樑位高度 (例如 天花高CL 3000 / 樑高 BH 2400)
2.哪些區域需要下修
3.燈槽與樑位是否干涉
4.吊隱式冷氣是否卡到樑
5.天花板高跳差是否平順
如果沒有做好天花避樑整合,就會出現:
1.天花高度明顯壓低
2.冷氣風管過不去
3.燈具位置錯位
4.線條不平整、視覺混亂
專業的天花設計會先在圖紙上整合結構樑、設備與照明,避免現場施工遇到衝突。
4.家具定位與設備線路配置必須同步放入天花設計
.jpg)
許多燈具與間接照明的位置都與家具密切相關,例如:
1.床頭燈槽需置中
2.浴缸上方需要防潮燈
3.書桌需要工作照明
4.衣櫃需要燈帶或感應燈
5.電視牆需暗管預留線路
因此在本案的天花設計圖中,我們同步標示:
1.工作桌檯面高度
2.插座與線路預留
3.冷氣出回風口與家具關係
確保 「 天花配置 」與 「 家具配置 」 一致,完工後才不會出現圖紙與現場不一致或風口對著臉的情況。
結論:好的天花設計 = 美觀、實用、好維修
一份完整的天花設計可以有效避免裝修過程中的大部分問題,並確保空間具備:
1.最佳天花板高度
2.美觀的間接照明效果
3.冷氣好維修、不必拆天花
4.清楚的線條與乾淨界面
5.家具、燈、設備位置對齊
6.維修孔、風管、線路皆可正常施工
完整的天花圖說不僅能讓施工者更清楚掌握作業內容,也能讓非業內的業主在閱讀圖面時,輕鬆理解施作細節。
如果你正在規劃裝修、想研究天花圖說,或想了解你的案場是否需要調整天花配置,歡迎與我們聯繫,我們會給你最完整的天花設計建議。